Listings
BROWSE andrea’s LISTINGS IN THE GREATER LOS ANGELES AREA
INCL. VENTURA COUNTY, ORANGE COUNTY & THE INLAND EMPIRE
NEW! Jr. Anchor + Retail Available at Grocery-Anchored Center | Huntington + Buena Vista
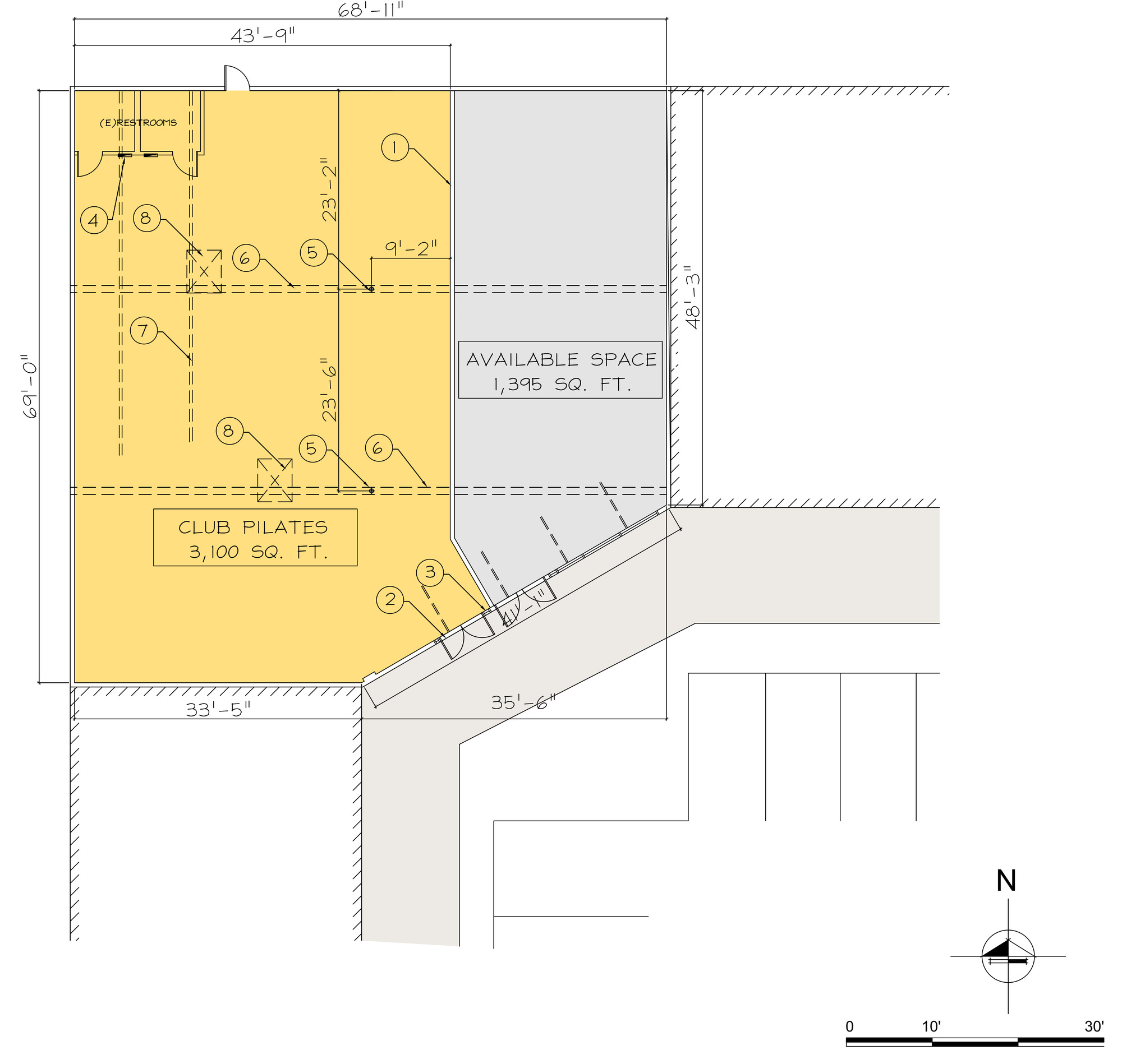
1193-1247 huntington dr | duarte, CA 91010
Unit 1175 – ± 4,531 SF (divisible ± 3,100 SF + ± 1,395 SF)
UNIT 1207 – ± 7,694 SF (DIVISIBLE: ± 3,000 SF + ± 1,500 SF + ± 1,153 SF + ± 2,063 SF)
UNIT 1229 – ± 1,200 SF
Highlights
- ± 7,694 SF JUNIOR ANCHOR SPACE NEXT TO SMART + FINAL
- ± 4,531 SF UNIT THAT CAN BE DEMISED DOWN TO ± 1,153 SF
- ± 1,200 SF NEAR THE END-CAP ON BUENA VISTA
- HIGH VISIBILITY SIGNAGE AND 850’ OF FRONTAGE
- AMPLE PARKING WITH ± 250 STALLS
- MAJOR SIGNALIZED INTERSECTION WITH 50,000 CPD
- EXCELLENT DEMOGRAPHICS SERVING THE AFFLUENT BRADBURY NEIGHBORHOOD
- NATIONAL CO-TENANTS INCLUDE PLANET FITNESS, HABIT BURGER, CLUB PILATES, STARBUCKS
- FOUR POINTS OF INGRESS AND EGRESS WITH PROXIMITY TO 210 FREEWAY
Property Description
Multiple units available at this grocery anchored center, including a Junior Anchor space and devisable options for tenants with smaller square footage needs.
± 7,694 SF Junior Anchor space next to Smart + Final. The former Dollar Tree store offers great visibility, 2 interior restrooms, receiving area with roll up door, high ceilings, and can be demised into two units of ± 3,000 SF and ± 4,577 SF or into four units between ± 1,153 SF and ± 3,000 SF.
± 4,531 SF former credit union with a largely open floor plan, office build out, break room/kitchenette, and 2 bathrooms. It can be demised to ± 3,000 SF and ± 1,395 SF.
± 1,200 SF near the end-cap on Buena Vista with an open floor plan, private restroom, back and front entrances, and office buildout.
This property has excellent visibility and monument signage, high traffic counts (50,000 CPD), ample parking with 250 stalls, multiple ingress/egress points, and national co-tenants including Smart + Final, Planet Fitness, Habit Burger, Starbucks and more.
Situated at the signalized corner of Huntington Drive + Buena Vista Street in prime Duarte at the foot of the San Gabriel Mountains. Adjacent to a range of A+ national restaurant chains and retailers, including California Pizza Kitchen, Starbucks, In-N-Out Burger, Target, and Walmart. Nearby is the City of Hope Medical Center and offers convenient access to the 210 Freeway. Excellent area demographics with the shopping center serving the affluent Bradbury neighborhood.
$1.85 – $3.50 PSF/month + NNN
Prime Retail/Creative Office Flex Building | Ventura Blvd + Hazeltine
14014 Ventura Boulevard | Los Angeles, CA 91423
± 4,450 SF
Highlights
- ± 4,450 SF RETAIL AND/OR CREATIVE OFFICE FLEX SPACE
- ± 850 SF PRIVATE COVERED GARAGE/STORAGE BONUS SPACE
- ADDITIONAL PARKING LOT IN ALLEY
- 3 BATHROOMS WITH SHOWERS
- PRIVATE EXIT/ENTRANCE IN BACK FOR CELEBRITY/VIP CLIENTS AND 2 FRONT ENTRANCES ON VENTURA BLVD
- 11 FOOT HIGH CEILINGS WITH RECESSED LIGHTING
- SKYLIGHTS THROUGHOUT SECOND FLOOR
- MULTIPLE, HIGHLY VISIBLE SIGNAGE OPPORTUNITIES
- EXCELLENT LOCATION – NEXT DOOR TO POPULAR TAISHO, CASITA, BLVD STEAK RESTAURANTS ON VENTURA BOULEVARD
Property Description
Rare, high-visibility building available on Ventura Boulevard in Sherman Oaks. Next door to popular restaurant Taisho and steps from prestigious tenants Whole Foods, Casita, BLVD Steak, Bacari, and In-N-Out Burger. Strong area demographics with $155K average annual income and approx 500K residents in a 5-mile radius.
± 4,450 SF two-story unit with ± 850 SF of bonus covered 4 car tandem parking garage/storage space, perfect for celebrity VIP clientele. There is an additional parking lot in the alley. Each floor has high 11-foot ceilings with recessed lighting, private bathrooms, and tile and hardwood floor. The second floor, a former hair salon, has ample natural light with well-positioned skylights, build out of private rooms or offices, 3 bathrooms with showers, and a kitchenette/break room with 2 sinks. Excellent signage opportunities on Ventura Blvd including a highly visible blade sign. A unique opportunity in a high-traffic, sought-after area. Tenant to verify square footage.
Ideal for med spa, dentist/dental, clinic, fitness gym, yoga or pilates studio, coffee lounge, private members club, hair and nail salon, and retail and creative office flex space.
$3.88 PSF/month ($0.17 NNN)
Retail Available | Madera + Royal Ave
1464 -1494 Madera Road, Simi Valley, CA 93065
SUITE A-2 – ± 1,880 SF
SUITE I-3 – ± 2,101 SF
Highlights
- ± 1,880 SECOND GENERATION MASSAGE AVAILABLE
- ± 2,101 SF FORMER TANNING SALON AVAILABLE
- 400 AMPS OF POWER, WATER HEATER, SINK, AND HOT AND COLD WATER HOOK-UPS FOR WASHER/DRYER
- EACH UNIT HAS SPACIOUS PRIVATE RESTROOMS
- HIGH STREET VISIBILITY AND SIGNAGE
- AMPLE PARKING LOT THAT IS ACCESSIBLE FROM BOTH CROSS STREETS
- HIGH TRAFFIC COUNTS OF ± 35,000+ CARS PER DAY
- NATIONAL CO-TENANTS INCLUDE BAJA FRESH MEXICAN GRILL
- CLOSE TO NEW HOUSING DEVELOPMENTS AND DENSE RESIDENTIAL NEIGHBORHOODS
Property Description
High visibility retail strip center that strategically sits at the busy, signalized intersection of Madera Road and Royal Avenue in Simi Valley with traffic counts of 35,000+ cars per day. The well-located property is close to major national retailers, new housing, medical, and densely populated residential neighborhoods with a $151K+ average income. This property features high visibility signage on busy Madera Road and Royal Ave, ample parking, and multiple ingress and egress points.
Suite I-3 at ± 2,101 SF boasts high ceilings with painted exposed ductwork ceiling, multiple build out of rooms, a spacious private restroom, sink, water heater, hot and cold water hook-ups for washer/dryer, and 400 amps of power. This unit is a former tanning salon and would be great fit for a variety of uses: fitness, med spa, dentist, restaurant, bakery, coffee, yoga/pilates, dog grooming, and other traditional retail uses (tenant to verify with governing authority). A Tenant Improvement Allowance may be available for qualified tenants.
Suite A-2 at ± 1,880 SF is a second generation massage business with multiple room build out, 2 spacious private bathrooms, 1 bathroom includes a shower, kitchenette with sink, hot and cold water hooks-ups for washer/dryer, ample storage space, and a back door for businesses with ventilation needs.
$1.25 – $1.50 PSF/month + NNN
Rare Retail Available Near USC Campus | S. Figueroa + W. Adams
2534 S. FIGUEROA ST, LoS ANGELES, CA 90007
UNIT 2534 – ± 1,095 SF
Highlights
- ±1,095 SF RETAIL SHOP SPACE AVAILABLE
- EXCELLENT CONDITION WITH HARDWOOD FLOORS
- PRIVATE RESTROOM + BACK OFFICE BUILD OUT
- FRONT AND REAR ENTRANCES/EXITS
- HIGH STREET VISIBILITY, PYLON SIGNAGE, AND STRONG TRAFFIC COUNTS
- AMPLE PARKING IN ONSITE LOT, MULTIPLE ENTRANCES FROM BOTH CROSS STREETS
- STRONG + DESIRABLE AREA DEMOGRAPHICS, INCLUDING LARGE USC STUDENT POPULATION
Property Description
±1,095 SF retail space available in a busy shopping center at the signalized intersection of S. Figueroa + West Adams, close to the USC campus. The unit is in excellent condition featuring high ceilings, hardwood floors, an in-suite private restroom, back office, front and back entrances, and an additional parking lot in the rear of the building/unit for employees.
The property features high street visibility, pylon signage, and ample parking in an onsite lot, accessible from both cross streets.
Situated at the NEC of S Figueroa and W Adams Blvd near prime USC campus. The site is freeway adjacent with convenient access to the 110 and 10 Freeways. Strong area demographics, including a large USC student population, and the intersection boasts approximately 75,000 cars per day.
$6.50 PSF/month + NNN
2nd Generation Restaurant Available | Venice + Western
1570 S. Western ave, LoS ANGELES, CA 90006
suite 106 – ± 900 SF + patio
Highlights
- ± 900 SF SECOND GENERATION RESTAURANT
- FULLY-EQUIPPED KITCHEN: HOOD, FRIDGE, DEEP FRYER, + MORE
- OUTDOOR PATIO SEATING AVAILABLE
- PRIVATE IN-SUITE RESTROOM
- HIGH-VOLUME VEHICLE AND PEDESTRIAN TRAFFIC
- AMPLE SURFACE AND SUBTERRANEAN PARKING AVAILABLE
- 600K PEOPLE RESIDING WITHIN A 3-MILE TRADE AREA
- FREEWAY ADJACENT WITH CONVENIENT ACCESS TO THE NEARBY 10 FREEWAY
Property Description
± 900 SF first floor 2nd generation restaurant available with patio seating available. Formerly Cali Love Pies Bakery and La Brea Chicken Restaurant. The kitchen is fully-equipped, including a commercial hood, deep fryer, stove, ovens, walk-in fridge, mini refrigerators, multiple sinks, and water heater. The unit also has an in-suite bathroom and fire sprinklers.
Retail shopping center at the NEC of the major signalized intersection of Venice Boulevard and Western Avenue in Los Angeles near Koreatown. The property boasts high foot and vehicle traffic, offering great exposure and visibility for your business. Major national tenants nearby include Speakeasy Fitness, Yoshinoya, and Starbucks.
$4.50 PSF/month + NNN
Retail Available | Starlite Plaza
1011 N Azusa Ave, Covina, CA 91722
UNIT 1027 – ± 1,424 SF
Highlights
- ± 1,424 SF FIRST FLOOR RETAIL UNIT AVAILABLE
- FORMER METRO MOBILE + MERCURY INSURANCE
- 2 ENTRANCES FOR EASY LOADING
- HIGHLY VISIBLE SIGNAGE OPPORTUNITIES
- 2 ON-SITE PARKING LOTS
- DENSELY POPULATED RESIDENTIAL COMMUNITY: 434,000 + RESIDENTS WITHIN 3-MILE RADIUS
- MAJOR 61 SINGLE FAMILY HOME DEVELOPMENT UNDERWAY ACROSS THE STREET
- NATIONAL TENANT PRESENCE IN THE AREA: JACK IN THE BOX, DUTCH BROS COFFEE, AND MORE
Property Description
Starlite Plaza strategically sits as a retail and office hub on busy North Azusa Avenue between Covina Boulevard and Cypress Street in Covina. A highly accessible location conveniently servicing both the 10 and 210 major freeways. The property is across the street from a major new residential development, Cypress Villas Project, of 61 single-family homes and a further ± 434K residents reside in a 3-mile radius Major nearby national retailers include Jack in the Box, U-Haul, McDonald’s, and Dutch Bros Coffee.
± 1,424 SF first floor retail unit available at Starlite Plaza. The unit is in excellent condition with room built out with a one-way mirror that can be used as an administrative office or storage, spacious private restroom, and large back area to be used as storage, break room, and/or office space, and back double-door to be used as a second entrance or loading.
Formerly a Metro by T-Mobile phone retail store and Mercury Insurance and would be great fit for a variety of uses: dentist/dental, party supply, barber shop, hair salon, furniture, appliance store, discount store, family services, tax prep, check cashing, mobile store, daycare or tutoring, donut, restaurant, juice, and bakery (tenant to verify with governing authority).
Starlite Plaza has high street visibility, pylon signage, and ample parking in both front and back overflow lots with multiple entrance points.
$1.50 PSF/month + NNN
Closed!
HIGHLIGHTS from andrea’s MOST RECENTLY CLOSED LISTINGS.
FOR A FULL LIST OF CLOSED DEALS, GO TO THE BLOG SECTION
CLOSED IN 60 DAYS! | 2nd Generation Restaurant at Venice + Western
1570 S. Western AVE, LOS ANGELES, ca 90006
Suite 106 – ± 900 sf + PATIO: NEW CARIBBEAN RESTAURANT
deal Highlights
- MULTIPLE OFFERS
- BASE RENT AT ASKING PRICE
- LEASED SIGNED WITHIN 60 DAYS OF ANDREA’S LISTING ON MARKET
- THIRD LOCATION FOR TASTE OF CARIBBEAN RESTAURANT AND SECOND RESTAURANT DEAL WITH CBM1
NOVEMBER 2025 closed
CLOSED IN 60 DAYS! | Wood Ranch Plaza
1494 Madera road, simi valley, ca 93065
Suite L – ± 678 sf: NEW PHONE REPAIR STORE
deal Highlights
- MULTIPLE OFFERS
- LEASED SIGNED WITHIN 60 DAYS OF LISTING ON MARKET
- PREVIOUS TENANT: VAPE STORE WITH 10 YEARS OF SUCCESS
- NEW TENANT: EXPERIENCED PHONE REPAIR OPERATOR WITH THREE OTHER LOCATIONS
OCTOBER 2025 closed
2 LISTINGS CLOSED IN 90 DAYS! | Wood Ranch Plaza
1464- 1494 Madera road, simi valley, ca 93065
UNIT B – ± 2,385 sf: NEW nail salon
UNIT I – ± 1,700 SF: NEW CHILDREN’S PSYCHOLOGY CENTER
deal Highlights
- LEASED 2 UNITS IN 90 DAYS WITH ANDREA’S PROFESSIONAL MARKETING AND NEGOTIATING SKILLS
- PREVIOUSLY ON MARKET FOR 2 YEARS WITH ANOTHER COMMERCIAL BROKERAGE
- ANDREA WORKED DILIGENTLY WITH THE LANDLORD TO STRATEGICALLY UPDATE THE UNITS FOR FASTER LEASING
- CHILDREN’S PSYCHOLOGY CENTER IS THE NEWEST LOCATION FOR EXPERIENCED OPERATOR
may 2025 closed
CLOSED IN 31 DAYS aT FULL ASKING! | Ventura Blvd
14006 1/2 vENTURA BLVD, sHERMAN OAKS, ca 91423
1/2 UNIT – ± 2,250 sf: NEW animal vet clinic
deal Highlights
- LEASED IN 31 DAYS AT FULL ASKING PRICE
- MULTIPLE OFFERS
- ON MARKET FOR 2 YEARS (FOR LEASE BY OWNER) BEFORE ANDREA TOOK THE LISTING
- SECOND FLOOR UNITS ARE TYPICALLY STAY VACANT FOR LONGER THAN FIRST FLOOR UNITS
- VET CLINICS BUILD OUTS ADD LONG TERM VALUE TO LANDLORD






































































